Rynek pierwotny
Mieszkania
Domy
Lokale użytkowe
POPULARNE MIASTA
Warszawa
Kraków
Łódź
Wrocław
Poznań
Gdańsk
Szczecin
Bydgoszcz
Białystok
Lublin
Gdynia
Katowice
Gdynia
Biura
Forum
INWESTYCJE MIESZKANIOWE
Mieszkania
Domy
Aparthotele
INWESTYCJE KOMERCYJNE
Biura
Handel
Hotele
Przemysł
Logistyka
Energetyka
INWESTYCJE PUBLICZNE
Oświata
Drogi i mosty
Komunikacja publiczna
Sport i rekreacja
Kamienice i zabytki
Budynki użyteczności publicznej
POPULARNE MIASTA
Wrocław
Kraków
Warszawa
Poznań
Katowice
Lublin
Gdańsk
Łódź
Białystok
Szczecin
Bydgoszcz
Toruń
Wiadomości
Morska Vita
DEVELIA S.A.
Zapytaj dewelopera o ofertę
Skontaktuj się aby poznać ofertę dla siebie
obserwuj
O inwestycji
Ogłoszenia
227
Zdjęcia
Wizualizacje
8
Opinie
3
REKLAMA
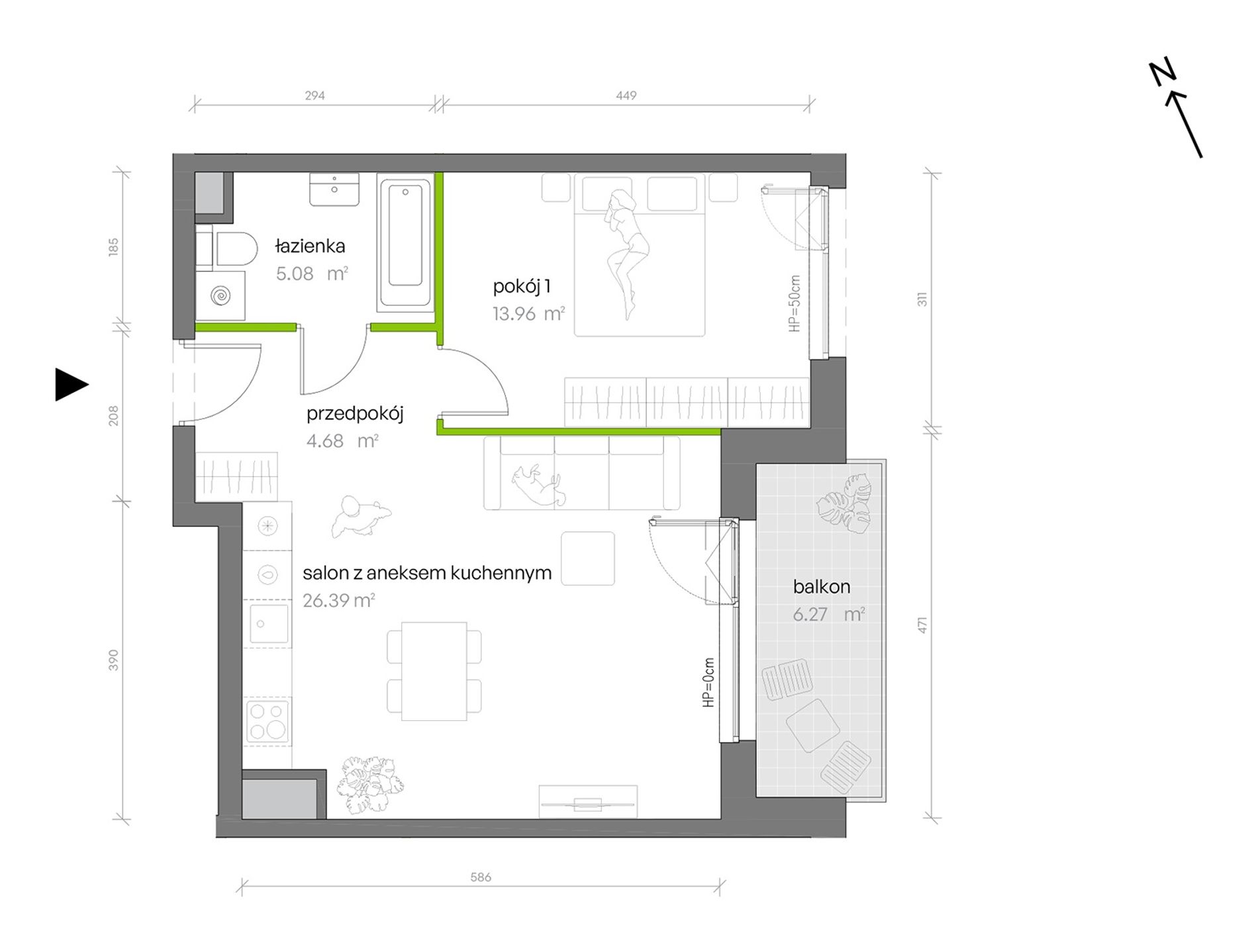
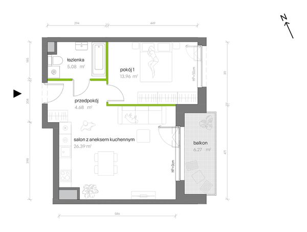
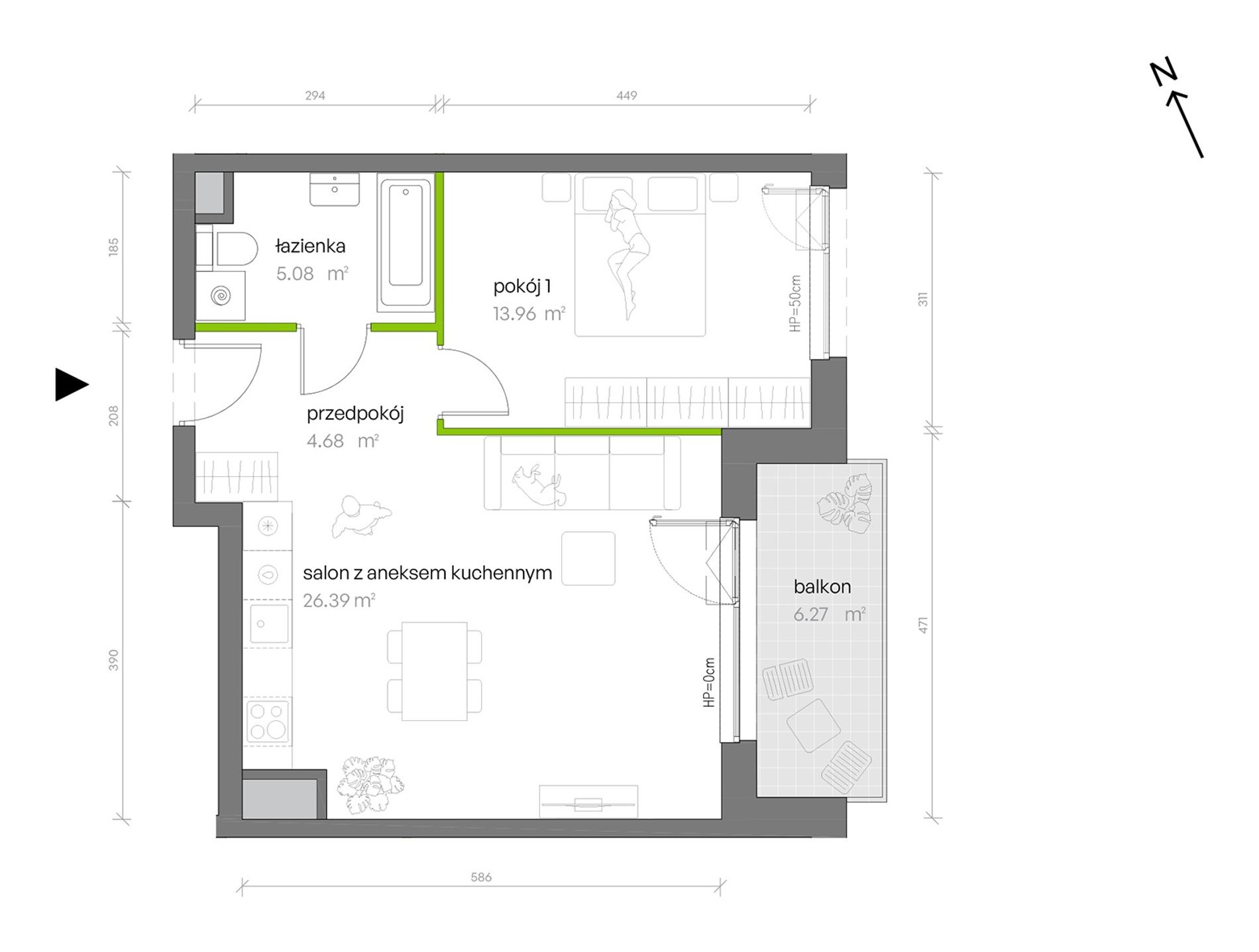
Mieszkanie 1.07.M83 na sprzedaż
powiększ
powiększ
powiększ
powiększ
powiększ
powiększ
powiększ
powiększ
nazwa
1.07.M83
powierzchnia
50,38 m2
cena
670 009,67 zł
zapytaj o promocję
oblicz ratę kredytu
cena za m2
13 299,12 zł/m2
piętro
7
liczba pokoi
2
DEVELIA S.A.
Zapytaj
Lokalizacja Mieszkanie
Nowe Mieszkanie w Gdynia
przy ulicy Działdowska 3A w inwestycji
Morska Vita
Proszę o więcej informacji na temat mieszkania 1.07.M83 w inwestycji Morska Vita
Zaznacz wszystkie zgody
Wyrażam zgodę na otrzymywanie, na moje konto poczty elektronicznej informacji handlowych wysyłanych przez investmap sp. z o.o. w imieniu własnym oraz na zlecenie innych osób
Wyrażam zgodę na wysłanie podanych przeze mnie danych do DEVELIA S.A. w celu przedstawienia rekomendacji oraz przetwarzaniu przez investmap sp. z o.o. do celów statystycznych
Zapytaj