Rynek pierwotny
Mieszkania
Domy
Lokale użytkowe
POPULARNE MIASTA
Warszawa
Kraków
Łódź
Wrocław
Poznań
Gdańsk
Szczecin
Bydgoszcz
Białystok
Lublin
Gdynia
Katowice
Gdynia
Biura
Forum
INWESTYCJE MIESZKANIOWE
Mieszkania
Domy
Aparthotele
INWESTYCJE KOMERCYJNE
Biura
Handel
Hotele
Przemysł
Logistyka
Energetyka
INWESTYCJE PUBLICZNE
Oświata
Drogi i mosty
Komunikacja publiczna
Sport i rekreacja
Kamienice i zabytki
Budynki użyteczności publicznej
POPULARNE MIASTA
Wrocław
Kraków
Warszawa
Poznań
Katowice
Lublin
Gdańsk
Łódź
Białystok
Szczecin
Bydgoszcz
Toruń
Wiadomości
Trzcinowa Vita
Grupa Morizon-Gratka Sp. z o.o.
Zapytaj
Skontaktuj się aby poznać ofertę dla siebie
obserwuj
O inwestycji
Ogłoszenia
128
Artykuły
1
Zdjęcia
Wizualizacje
10
Opinie
2
REKLAMA
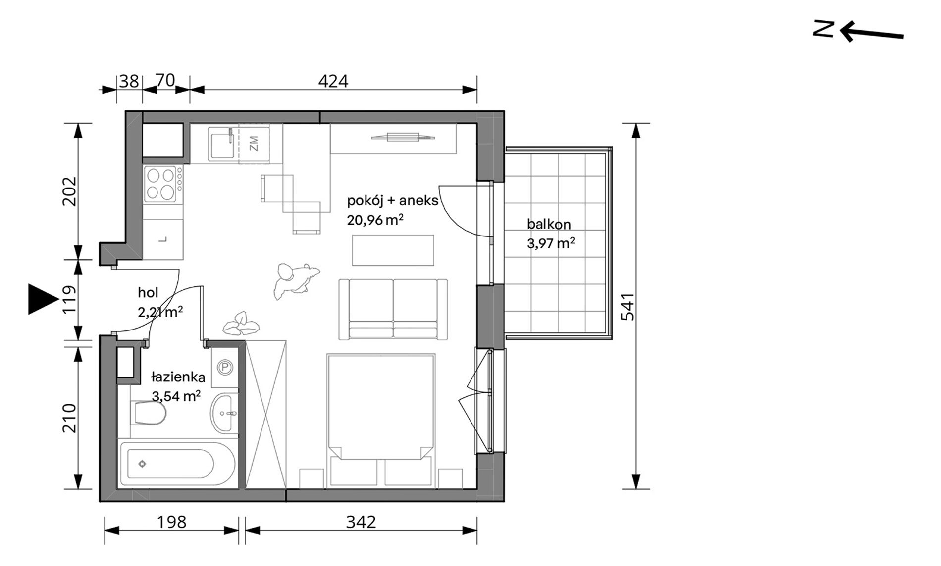
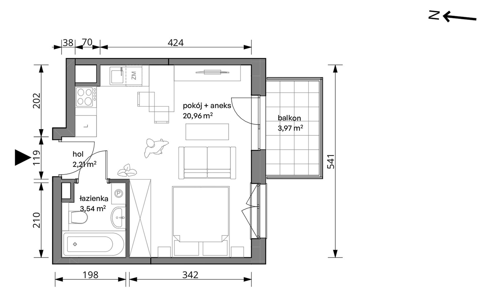
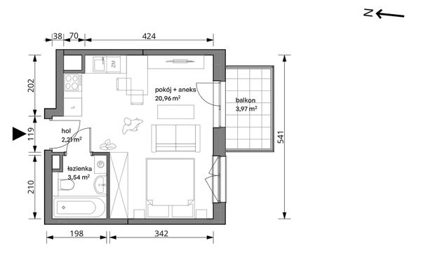
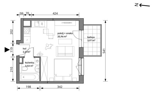
Mieszkanie 18/104 na sprzedaż
powiększ
nazwa
18/104
powierzchnia
26,71 m2
cena
475 424,11 zł
zapytaj o promocję
oblicz ratę kredytu
cena za m2
17 799,48 zł/m2
piętro
2
liczba pokoi
1
Grupa Morizon-Gratka Sp. z o.o.
Zapytaj
Lokalizacja Mieszkanie
Nowe Mieszkanie w Warszawa
przy ulicy Trzcinowa 18 w inwestycji
Trzcinowa Vita
Proszę o więcej informacji na temat mieszkania 18/104 w inwestycji Trzcinowa Vita
Zaznacz wszystkie zgody
Wyrażam zgodę na otrzymywanie, na moje konto poczty elektronicznej informacji handlowych wysyłanych przez investmap sp. z o.o. w imieniu własnym oraz na zlecenie innych osób
Wyrażam zgodę na wysłanie podanych przeze mnie danych do Grupa Morizon-Gratka Sp. z o.o. w celu przedstawienia rekomendacji oraz przetwarzaniu przez investmap sp. z o.o. do celów statystycznych
Zapytaj